Spaze Palazo – Integrated Business & Retail Complex in Sector 69, Gurgaon

Spaze Palazo – Integrated Business & Retail Complex in Sector 69, Gurgaon

Spaze Palazo is a premium commercial development located in Sector 69, Gurgaon. This integrated business and retail complex offers modern retail shops, food courts, anchor stores, and office spaces designed to cater to top brands and businesses.

Strategically situated on the Southern Peripheral Road (SPR), Spaze Palazo ensures excellent connectivity to Golf Course Extension Road, Sohna Road, and NH-48. This makes it one of the most promising commercial hubs in Gurgaon. Ideal for investment and business growth, Spaze Palazo Sector 69 Gurgaon is the future of retail and corporate spaces.

Key Highlights of Spaze Palazo

Top-Class Amenities at Spaze Palazo

Location Advantages – Sector 69, Gurgaon

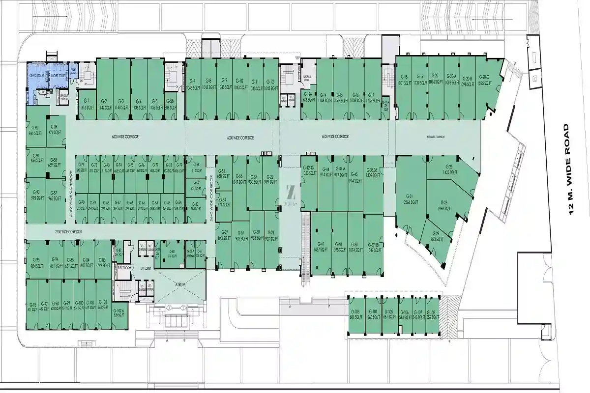
Floor Layout – Spaze Palazo

Ground Floor: Retail Shops | First Floor: Food Court, Retail | Upper Floors: Office Spaces & Corporate Suites

The layout of Spaze Palazo is intelligently designed to ensure high visibility and smooth footfall for retail units. The office spaces offer flexible configurations for startups and established businesses.

  • Double-Height Showrooms on Ground Floor
  • Efficiently Planned Office Floors
  • Elevators & Escalators for Easy Movement
  • High Ceilings for Better Ventilation
Spaze Palazo Floor Plan

About Spaze Group – Developer of Spaze Palazo

Spaze Group is one of the leading commercial real estate developers in Gurgaon. With successful delivery of IT parks, shopping arcades, office towers, and mixed-use developments, they have built a strong reputation for reliability and design excellence.

Projects like Spaze Palazo showcase the group’s vision to develop future-ready commercial ecosystems that combine aesthetics, functionality, and long-term value.

Why Invest in Spaze Palazo Sector 69 Gurgaon?